コテージ付きキャンプ場

コテージ付プライベートキャンプ場

アウトドアの醍醐味を味わいたい。気候が良いときはテントで寝泊りしたい。雨の日は部屋に泊まりたい。綺麗なトイレがやっぱりいい!!お風呂に入りたい・汗を流したい。キャンプだけど電子レンジをちょっと使いたい。そんな利便性の良いアウトドア空間があるとしたらどうでしょうか?何度かキャンプに来てるけど、実は家族の全員が満足していない。また、小さいお子様がいると1日中外にいるのはつらい。特にトイレ、お風呂、キッチンがもう少し便利に使えたなら家族みんなが満足する。もちろん、天候の良いときは、日中はバーベキュー、夜はキャンプファイヤ、プライベートキャンプ場なので、テントを張ってテントで寝泊り。ペット連れOKなので外で遊ばせる事が可能な空間です。そして、何より友達同士、仲間同士で使うにはとても便利です。よくありがちなコテージやバンガローを予約するときにみかける「1部屋最大何人まで」とか、「何人目以降1人@@円増し」というのがありますよね。でももし自分で所有していたりあるいは友達、仲間同士で共同所有していたとしたら人数に関係なく来ることも可能ですよね。しかも、コテージ付きでキャンプのできる土地があって450万円から購入可能だとしたらいかがでしょうか。また、敷地もご自分でカスタマイズするこができたらどうでしょうか。テント生活もよし!コテージ生活もよし!敷地の使い方も自由にできる快適アウトドアライフ空間作りが可能です。

とは言っても、キャンプなんて年に1、2回しかやらないよ!!とか建物の管理をするのが面倒だ!!とお思いの方に管理プランのご提案も可能です。例えば、弊社がご利用者の頻度に合わせて、コテージをお借りすることが可能です。ご利用者の方が使わないときに弊社で第三者にお貸しをするご提案です。その間のコテージの管理、敷地の管理は弊社で行いますので、良好な維持管理ができます。また、年契約でのご契約ですのでご利用者に弊社が年間賃料をお支払いします。このようなご提案は一例ですので、ご利用者のニーズに合わせて様々なご提案をさせて頂きますので、お気軽にご相談下さい。我々は、アウトドア空間造りのお手伝いを致します。

今回のご提案はコテージ付きキャンプ場プランは土地地付建物として企画販売を致します。金額は、450万円からのご提案となります。土地は約74坪(約244㎡)から、建物(キッチン、トイレ、シャワールーム)は8.5坪(28㎡)からのご紹介となります。別途諸経費がございます。企画料として土地建物金額の5%をお引渡し時に頂きます。詳しくは、下記パンフレットをご覧ください。また、通常の別荘タイプもございますので、リゾート物件もご覧下さい。ご質問等は末端の問合せフォームよりお願い致します。

 

今回のご提案場所は岐阜県高山市高根町子ノ原高原の標高1600Mに位置する高原です。敷地内には無印良品南乗鞍キャンプ場があります。晴天の夜には満天の星空を楽しめます。また、春には山菜が取れますので自給自足生活も楽しめます。

 

パンフレットはこちらから

 

★利用期間・管理費について

・冬季期間は雪のため利用はできません。おおむね利用可能期間は4月中旬から12月中旬の期間となります。積雪状況により前後する事があります。

・物件内は入山証が必要となりますので、所有者に管理会社の子ノ原管理(有)より入山証を発券致します。

・別荘地を所有するにあたり、管理費が必要となります。管理費につきましては、所有面積により異なります。

1000坪以下坪当たり40 円(年額)/1000坪以上坪当たり60円(年額)

例えば、300坪の所有で12,000円/年となります。
※イメージパース

 

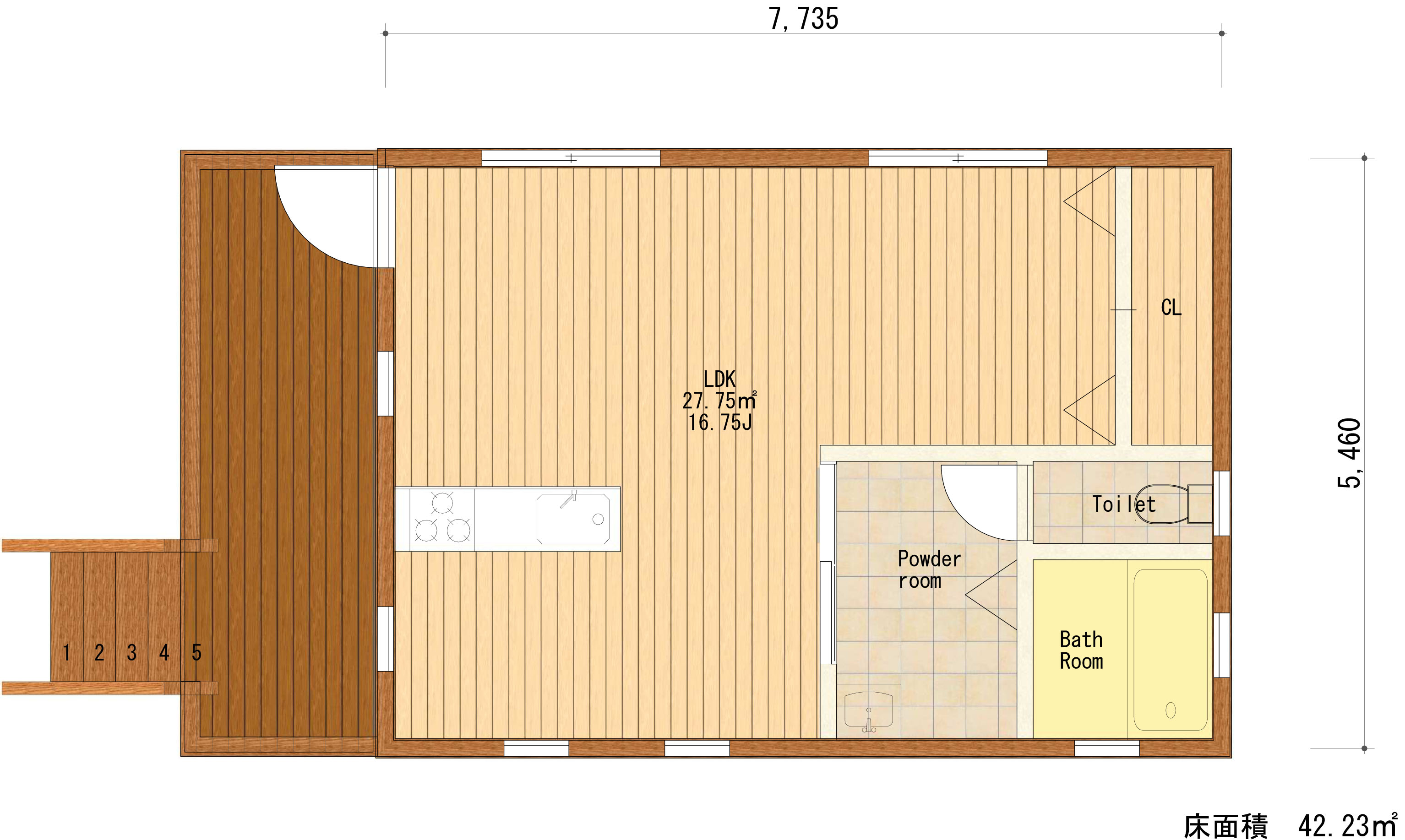
※イメージ図面

PLAN1平面図

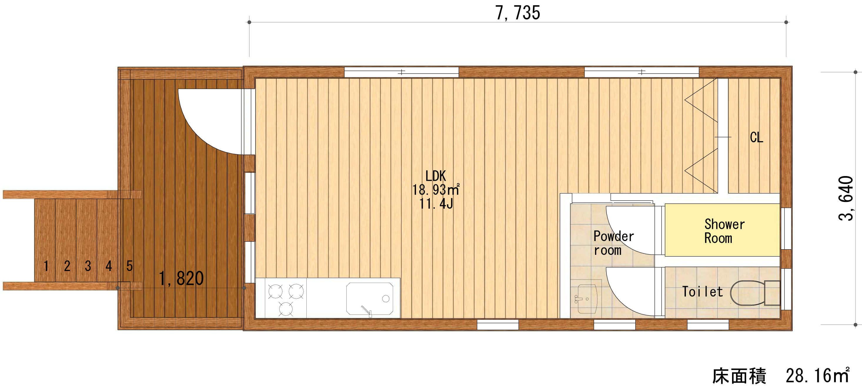
※イメージパース

 

 

※イメージ図面

 

★アクセス

 

SnapCrab_NoName_2016-6-17_15-17-56_No-00

 

 

SnapCrab_NoName_2016-6-13_13-27-27_No-00

SnapCrab_NoName_2016-6-17_15-12-2_No-00

 

 

contact